American Tire Distributors - 500 U.S. 49 Frontage Rd. Richland, Ms. - 41,250 SF

Site Selection Center

Register

American Tire Distributors - 500 U.S. 49 Frontage Rd. Richland, Ms. - 41,250 SF

41,250 Square Feet

  • Location

    500 U.S. 49 Frontage Rd.
    Richland , MS, 39218
    Rankin County
    32.24197, -90.16316
  • Listing Size

    41,250 Square Feet

  • Property Type

    Warehouse/Distribution

Transportation Infrastructure


Primary Airport
Jackson-Medgar Wiley Evers Intl (JAN)

Commercial, International, Freight, Charter

6.9 Miles

  • Hawkins Field (HKS)

    Commercial, Freight, Charter

    7.2 Miles

Primary Interstate
I-20

2.1 Miles

  • I-55 2.8 Miles

Primary Highway
US Hwy 49

0 Miles

  • State Hwy 468 1.9 Miles

Primary Rail
Kansas City Southern Railway

0.5 Miles

  • Canadian National Rwy 0.6 Miles

Primary Navigable Water
Yazoo River

Shallow

37 Miles

  • Little Sunflower River 41 Miles

Primary Water Ports
Port of Vicksburg

44 Miles

  • Port of Lake Providence 69 Miles

Data Source

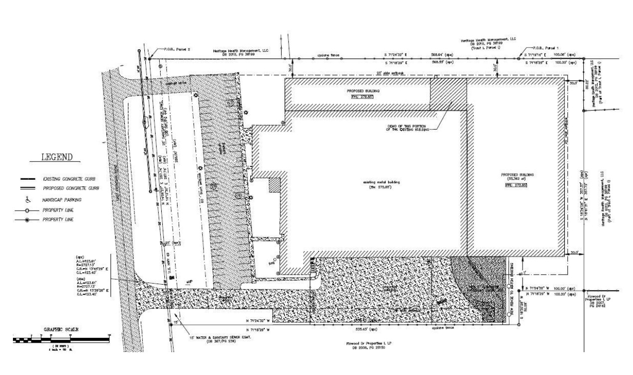
Offered for sublease is +/- 41,250 SF of warehouse space with 24' clear ceiling heights and 3 dock doors. The lease term has 5 years remaining, continuing through June 2025. The section of the building available for sublease was a building expansion constructed in 2015.

The lease rate does not include utilities, property expenses, or building services
Sublease space available from the current tenant
3 Loading Docks

Specifications


Construction Date 2015
Floors
On Slab Yes
Reinforced Slab Yes
Slab Thickness 0
Truck Facilities
Has Truck Facilities Yes
Wells 0
Docks 3
Floor-Level Doors 3
American Tire Distributors - 500 U.S. 49 Frontage Rd - Richland, MS
Size 41250 sq ft
Ceiling Height 24 ft
Floor Material Concrete
Electricity Entergy
Water Richalnd
Telecommunications Multiple
Sewer Richland
Fiber-Optic Multiple
Sprinkler System
Fire Protection Sprinklers Yes
Sprinkler Type Wet
Fire Station
Closest Fire Station Richland Fire Dept. Station 1, 447 U.S. 49 Frontage Rd #39218, Richland, MS 39218
Distance 0.7 miles
Lease Price $3.73/SF/YR
Property ID 19513
Lot Size 6.07 Acres
Prior Use Tire Distrubution Warehouse
Free-Standing Yes
Multi-Tenant Yes
Cranes
Cranes No
Cold Storage
Cold Storage No

Documentation


Documents
PDF (480 KB)
Photos
JPG (226 KB)
JPG (866 KB)
JPG (193 KB)
JPG (137 KB)
JPG (694 KB)
JPG (848 KB)
JPG (952 KB)
JPG (864 KB)
JPG (207 KB)
JPG (203 KB)
JPG (186 KB)
JPG (272 KB)
JPG (186 KB)
JPG (277 KB)
JPG (217 KB)
JPG (159 KB)

Demographics


Custom Analysis
Loading, Please Wait ...

Regina Todd
Assistant Director

601-825-5335 Office
601-825-1977 Fax

Email

Rankin First Economic Development Authority
P.O. Box 129
Brandon, MS 39043

Garrett Wright
Executive Director

601-825-5335 Office
601-825-1977 Fax
Mobile

Email

Rankin First Economic Development Authority
P.O. Box 129
Brandon, MS 39043

Property Last Updated 3/16/2026 8:07:37 AM


Site Selection Center

Building in Rankin County, MS

American Tire Distributors - 500 U.S. 49 Frontage Rd. Richland, Ms. - 41,250 SF

Photo
Offered for sublease is +/- 41,250 SF of warehouse space with 24' clear ceiling heights and 3 dock doors. The lease term has 5 years remaining, continuing through June 2025. The section of the building available for sublease was a building expansion constructed in 2015.

The lease rate does not include utilities, property expenses, or building services
Sublease space available from the current tenant
3 Loading Docks
41,250 Square Feet
Contiguous Available:

Multi-Tenant: Yes

Listing Price

Lease Price
$3.73/SF/YR

Property Type

  • Warehouse/Distribution

Site Selection Center

American Tire Distributors - 500 U.S. 49 Frontage Rd. Richland, Ms. - 41,250 SF

Transportation Infrastructure

  • 500 U.S. 49 Frontage Rd.
  • Richland , Mississippi 39218

Airports

  • Primary:
    Jackson-Medgar Wiley Evers Intl (JAN)

    6.9 Miles

  • Additional:
    Hawkins Field (HKS)

    7.2 Miles

Interstates

  • Primary:
    I-20

    2.1 Miles

  • Additional:
    I-55

    2.8 Miles

U.S. Highways

  • Primary:
    US Hwy 49

    0 Miles

  • Additional:
    State Hwy 468

    1.9 Miles

Rail

  • Primary:
    Kansas City Southern Railway

    0.5 Miles

  • Additional:
    Canadian National Rwy

    0.6 Miles

Navigable Water

  • Primary:
    Yazoo River

    Yazoo River Miles

  • Additional:
    Little Sunflower River

    41 Miles

Ports

  • Primary:
    Port of Vicksburg

    44 Miles

  • Additional:
    Port of Lake Providence

    69 Miles

Site Selection Center


American Tire Distributors - 500 U.S. 49 Frontage Rd. Richland, Ms. - 41,250 SF

Property Details

Construction

Construction Date: 2015

Floors

On Slab: Yes
Reinforced Slab: Yes
Slab Thickness: 0

Truck Facilities

Truck Facilities: Yes
Wells: 0
Docks: 3
Floor Level Doors: 3

Fire Protection

Sprinkler System

Fire Protection Sprinklers: Yes
Sprinkler Type: Wet

Fire Station

Richland Fire Dept. Station 1, 447 U.S. 49 Frontage Rd #39218, Richland, MS 39218
Distance: 0.7 Miles

Cranes

Has Cranes: No

Utilities

Electricity

Provider: Entergy

Water

Provider: Richalnd

Telecommunications

Provider: Multiple

Sewer

Provider: Richland

Fiber-Optic

Provider: Multiple

Cold Storage

Has Cold Storage: No


Site Selection Center

American Tire Distributors - 500 U.S. 49 Frontage Rd. Richland, Ms. - 41,250 SF

Space & More Information

Space Size Column Spacing Ceiling Height Eave Height Air Conditioning Heating
American Tire Distributors - 500 U.S. 49 Frontage Rd - Richland, MS 41250 Sq Ft 0 × 0 Sq Ft 24 Ft 0 Ft No No

More Information

Property Id: 19513 Free Standing: Yes
Lot Size: 6.07 Acres Multi-Tenant: Yes
Former Use: Tire Distrubution Warehouse

Site Selection Center

American Tire Distributors - 500 U.S. 49 Frontage Rd. Richland, Ms. - 41,250 SF

Additional Images

Photo Photo Photo Photo Photo Photo Photo Photo

There are more property images. For complete details visit: https://mississippisiteselection.com/Property/Detail/19513/American-Tire-Distributors-500-US-49-Frontage-Rd-Richland-Ms


Site Selection Center

American Tire Distributors - 500 U.S. 49 Frontage Rd. Richland, Ms. - 41,250 SF

Demographics


Site Selection Center

American Tire Distributors - 500 U.S. 49 Frontage Rd. Richland, Ms. - 41,250 SF

Ready to learn more about this site?

Regina Todd
Assistant Director
rtodd@rankinfirst.com

Office: 601-825-5335
Mobile:
Fax: 601-825-1977

Rankin First Economic Development Authority
P.O. Box 129
Brandon, MS 39043

Garrett Wright
Executive Director
gwright@rankinfirst.com

Office: 601-825-5335
Mobile:
Fax: 601-825-1977

Rankin First Economic Development Authority
P.O. Box 129
Brandon, MS 39043

Entergy Corporation and its subsidiaries, including Entergy Services, LLC, Entergy Arkansas, LLC, Entergy Louisiana, LLC., Entergy Mississippi, LLC, Entergy New Orleans, LLC, Entergy Texas, Inc., (collectively, the “Entergy Companies”) are not licensed to market any real property.

Information about these properties is provided merely to assist in economic development efforts. The Entergy Companies make no representations or warranties whatsoever regarding accuracy or completeness of the information nor the condition or suitability of these properties. Inquiries about any property should be directed to the listing broker for that property. Used only with the permission of the Entergy Companies. Usage restricted.

© 1997 – 2026, Entergy Corporation, All Rights Reserved.

Generating PDF

Your download will begin in a moment.

Email PDF